
こだわりポイント
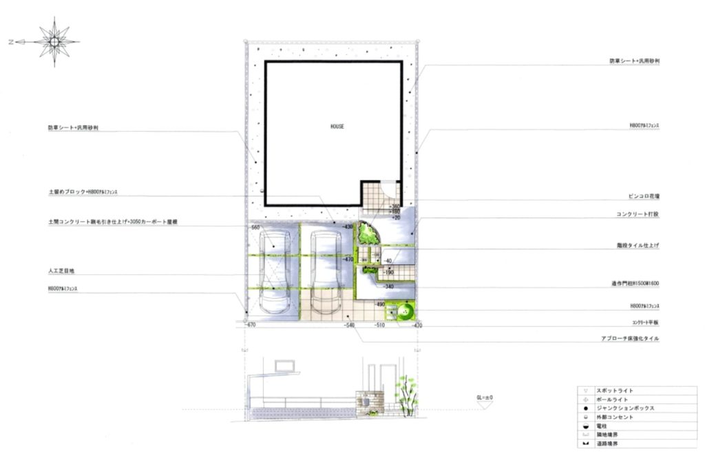
・全体 駐車場2台とゆったりご利用できるアプローチの配置。敷地外から玄関までの導線は真っすぐではなく、左右に振ることで動き・奥行き感が生まれます。さらに敷地の高低差は疲れる・危ない等の理由で本来嫌がられるポイントですが、高齢者でも足に負担のかからない蹴上とゆったりとした踏面を確保、さらに緑を添えることで気持ちよく玄関まで歩くことができます。
・駐車場 1台約3mの幅を確保することで、毎日の乗り降りをストレスなくご利用いただけます。カーポート屋根は近年の温暖化・高熱線による車(車内に保管しているもの)へのダメージを大きく軽減することができます。1部分アプローチとして演出しているタイル部分は、通常重量による剥離・割れが生じますが、強化タイルを使用することでアプローチ兼駐車場としてご利用いただけます。
・門柱 化粧ブロック(グレーの汎用ブロックにお化粧を張り付けた材料)仕様でコストを抑え、ポスト・表札・インターホンを壁付けにすることでそれぞれの個性を1つの大きな門柱に落とし込みました。使用している化粧ブロックはまるで本物の木材のような木目テクスチャーを演出し、経年変化や排ガス・粉塵による汚れを防ぎますので、長年ご利用いただけます。
・緑(植栽) 玄関を正面から見て、門柱が左手、右手にシンボルツリーを配置することで奥行き感の演出とオープン外構特有の負の開放感を和らいでくれています。目地にはそれぞれ緑を添えることで硬いイメージの構造物(門柱・階段・コンクリート)が暖かみのあるものに変化します。

