-キャンペーン実施中-

外構・エクステリア デザインプラン集

新築外構のイメージパース新築外構
暖かみのある色味を意識したオープン外構 スタイル:洋風エクステリア

このページでは外構(エクステリア)のデザインプランを掲載しております。手書きによるイメージパースと平面図によるご説明を、素材・配置・形状等の意匠を少しばかり綴っております。各プランごとにページがございます。 詳しくはお問合せページよりお気軽にご相談ください。

新築外構のイメージパース
飽きの来ない色味を意識したオープン外構 スタイル:シンプルモダン

シンプルモダン ① 駐車場2台とゆったりアプローチが魅力

新築外構のイメージパース
暖かみのある色味を意識したオープン外構 スタイル:洋風エクステリア

洋風 ① 暖かみと趣のある素材がかわいい

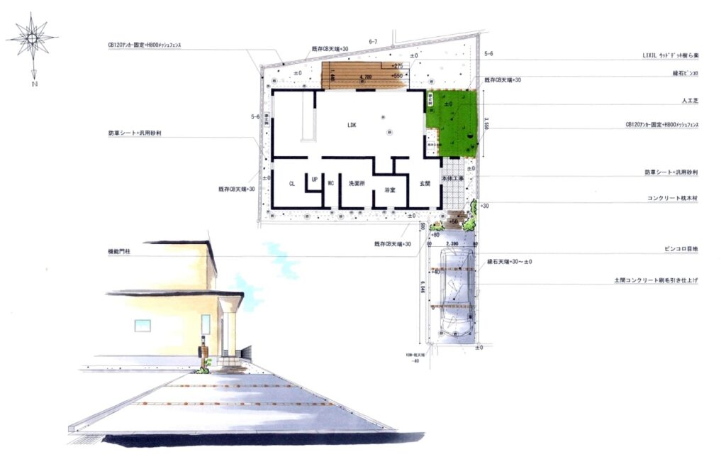
外構の平面図
それぞれのスポットが連動し、建物の高級感に見劣りしないオープン外構 スタイル:シンプルモダン

シンプルモダン ② 重厚な石材で連動する一体感のあるエクステリア

新築外構のイメージパース
スクリーンフェンスと門柱が一体化した、フレームによる立体感と奥行きが魅力 スタイル:シンプルモダン

シンプルモダン ③ 自由なフレームゲートでアプローチを一体。プライベートエリアも開放的

イメージパース
建物のレンガ調にあわせたオープン外構 スタイル:洋風エクステリア

洋風 ② お庭で広々バーベキュー

イメージパース
ゆったり車二台オープン外構 スタイル:シンプルモダン

シンプルモダン ④ 車二台の駐車場は斜めの動きをつけてみよう

イメージパース
スッキリしたオープン外構 スタイル:シンプルモダン

シンプルモダン ⑤ 旗竿地のスッキリとした収まり

新築外構のイメージパース
朽ちた趣を感じられるオープン外構 スタイル:ナチュラルエクステリア

ナチュラル ① 高低差を動きのある階段で解消。ちりばめられた植物にほっこり

イメージパース
屋外の開放感と穏やかな時間を味わえます。

シンプルモダン ⑥ フレームとスクリーンで緩やかに仕切られた空間

イメージパース
スタイリッシュでシンプルなオープン外構

シンプルモダン ⑦ 建物の木目調とダーク系の色合いに調和した外構

イメージパース
フェンスと植栽による目隠しの工夫があるオープン外構

シンプルモダン ⑧ 定番の駐車場2台とアプローチが両立した外構

イメージパース
目隠しフェンスで緩やかに囲われたプライベート空間

シンプルモダン ⑨ 斜めの動きで生まれた門柱・おもてなしスペース

タイトルとURLをコピーしました