
こだわりポイント
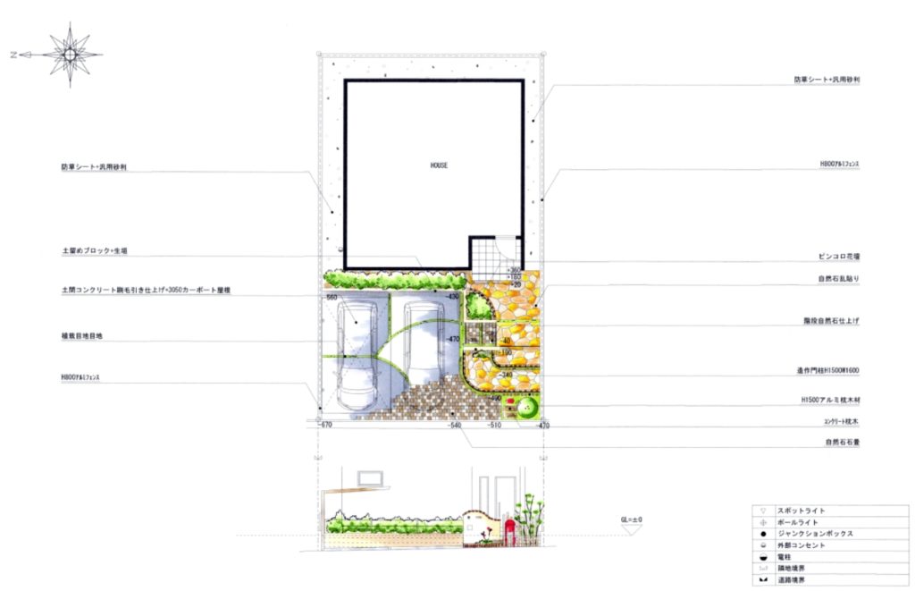
・全体 駐車場2台とゆったりご利用できるアプローチの配置。敷地外から玄関までの導線は真っすぐではなく、左右に振ることで動き・奥行き感が生まれます。さらに使用素材にイエローやブラウンを取り入れることで、ナチュラルなイメージと暖かみを感じることができます。また、それぞれの構造物を曲線で造り上げることで柔らかいイメージを演出しています。
・駐車場 1台約3mの幅を確保することで、毎日の乗り降りをストレスなくご利用いただけます。カーポート屋根は近年の温暖化・高熱線による車(車内に保管しているもの)へのダメージを大きく軽減することができます。1部分アプローチとして演出している石畳部分は、通常重量による剥離・割れが生じますが、下地処理を施すことでアプローチ兼駐車場としてご利用いただけます。
・門柱 全体のイメージにあわせた曲線を門柱にも取り入れ、天端の笠木にはレンガを使用し、建物の色にあわせた塗り壁を施すことで柔らかいイメージを演出しています。ボビポストは単独で相性の良いアルミ立格子とシンボルツリーのそばに添えてあげました。(奥行き感とゆとりが感じられます。)また、門柱の一部を空洞にすることでお気に入りの小物アイテムを設置したりとオリジナルの顔(門柱)を楽しめます。
・緑(植栽) シンボルツリーは落葉樹のジューンベリーを選び、春から夏にかけて常緑樹では見られないさわやかな黄緑色の葉を楽しめ秋には実が収穫でき、冬に紅葉そして落葉し春を待ちわびる静けさを感じることができます。建物前の花壇には生垣を植え込みナチュラルテイストをより一層引き立てております。

