工事金額98万円(税抜)

交通量の多い前面道路のプレッシャーを、建物壁のツートンカラーに調和した門柱で軽減。玄関ドアを開けて1枚の構造物があれば、安心して外出・車への荷支度をすることができます。
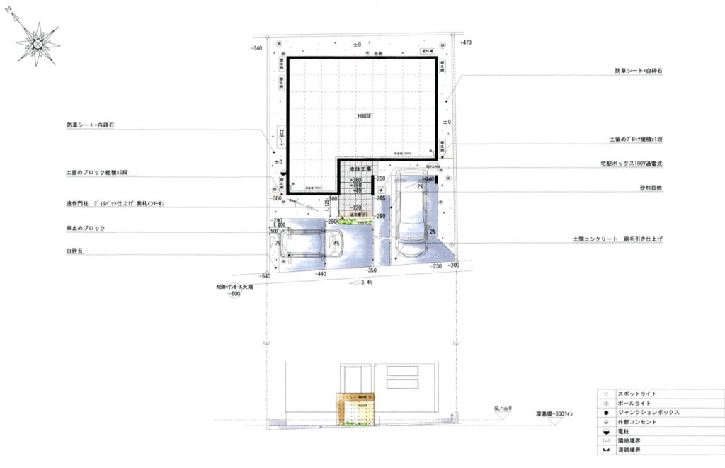
門柱はオリジナル造作門柱で、異なったサイズの下地ブロックを2つ積み上げることで建物の立体感を門柱にも演出しています。ジョリパット割り肌仕上げ・笠木はLIXILのコーピングです。
LIXILの口金ポスト(埋め込み型)を採用し郵便物容量を確保しつつ、毎日の快適に出入りが出来る空間を作成しました。
夜間安心して駐車ができるポールライトと、門柱を優しく照らすアンダーバーライト。どちらも明るさセンサー付き電源から発動しているので、自動で点灯しタイマーにより消灯します。(タカショートランスユニット)最近のオープン外構は敷地内空間が丸見えなので、照明演出による防犯が主に役立っています。門柱の足元はお客様のお好みの植木を植えることができます。

建物から外へ、外から外構へ。こだわり抜いて作られた建物の演出を、そのままエクステリアへ連動させる造りになるよう心掛けました。長年お住まいになられる方に安心して寄り添える空間をこれからも体感していただけます。









