工事金額160万円(税抜)



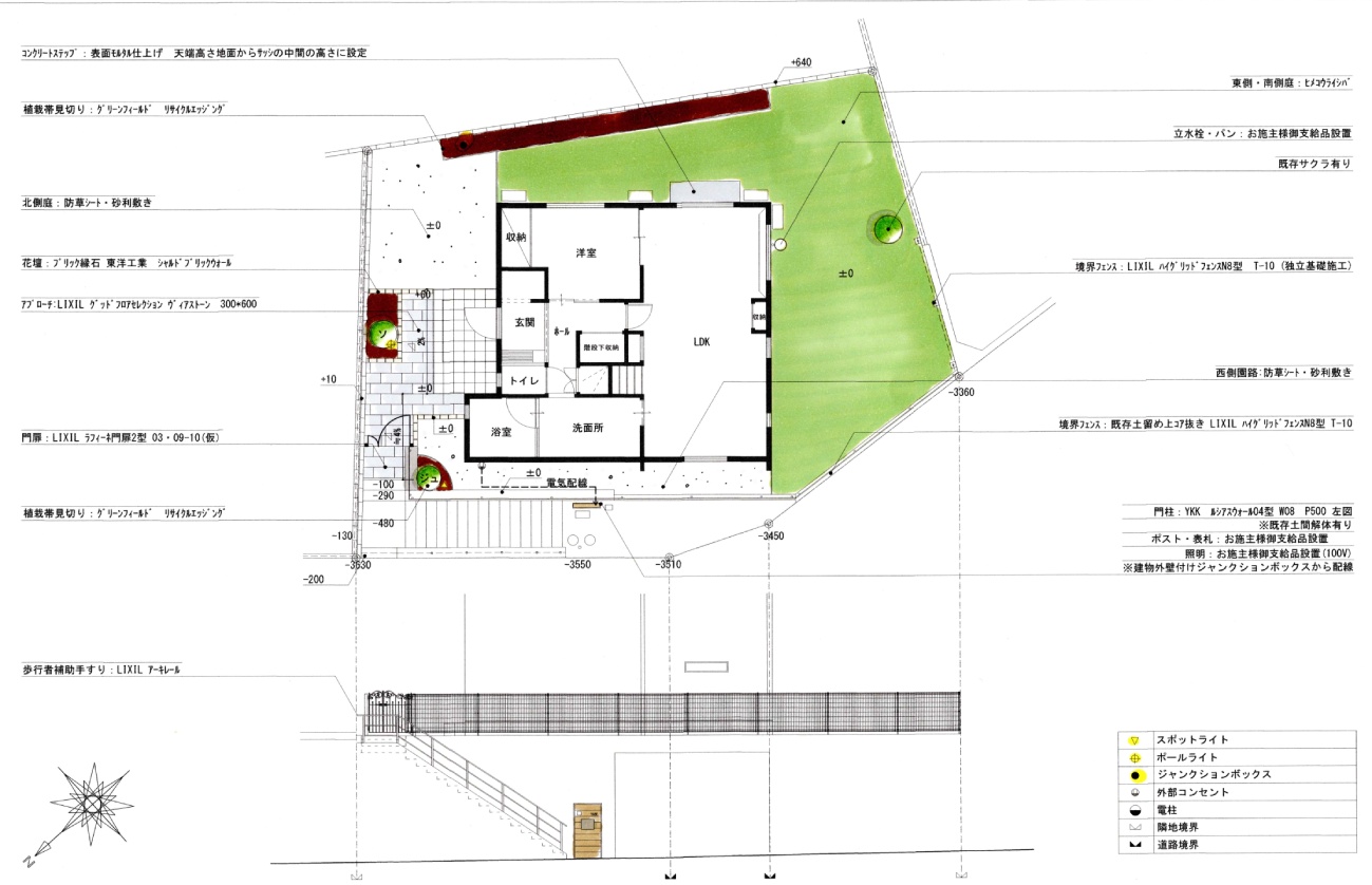
道路から宅内までの高低差があるので、門柱は道路に近い場所に設置しました。そうすることで、ご来客や郵便配達員の方が高低差のある階段を上がることなくインターホンを鳴らすことが可能になります。また、玄関先まで部外者が上がってこられるのが心配…という方にはおすすめです。夜には門柱に設置した照明が宅内に上がる階段や車庫付近を優しく照らすので暗がりの中でも安心して使用することができます。南側をメインに天然芝が広がるお庭になるようプランし、アプローチはシンプルに使いやすさを重視しています。


アプローチ付近には花壇スペースを確保し、植栽を楽しめるようにプランしました。花壇の縁には東洋工業のグルバストーン90角を使用することでアクセントになります。また植栽帯に照明を設置し、階段から上がってきた後の足元を安全に照らしてくれます。門扉はアルミ鋳物の商品を採用し、落ち着きと高級感のある印象を与えてくれます。300×600の大判タイルはまるで石畳のような美しいアプローチを演出してくれます。


もともとあった既存のコンクリート舗装に新しく門柱を設置したいとのご要望でしたので、YKKのルシアスウォールを採用しました。美しい木目調とお客様こだわりのレトロランプの相性がとても良いです。


建物のお色が落ち着いた雰囲気のブラウン調のタイルですので、シンプルな大判タイルが建物を引き立たせてくれます。

