工事金額180万円(税抜)
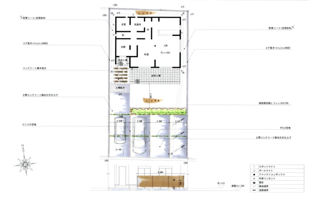
ご来客含め車を3~4台まで停められるコンクリート駐車場はシンプルな直線目地で、縦にインターロッキング材と横に植栽(タマリュウ)を植えることで、交差する華やかなイメージを持たせています。
フェンスの高さ1.7m、板の隙間15㎜。ここまでの高さとなると基礎もしっかり打設し、柱と柱の間には開き止めの金具を取り付けています。裏面から見ると笠木・縁フレームのような見た目も素敵です。
玄関ポーチ前はナチュラルで開放的なイメージを演出するため、土間コンクリートではなくコンクリート枕木を敷設し、玄関へ趣のある動きを出しています。(TOYO工業レイルスリーパーペイブ)
後のサイクルポート屋根の設置の為、コンクリートを打設しない部分を設けることで、コンクリートの解体費・処分費を掛けない工夫をしています。
フェンスの足元は花壇スペースが設けられ、お好みの植物を育てられます。
New施工後のお客様の声










