工事金額127万円(税抜)



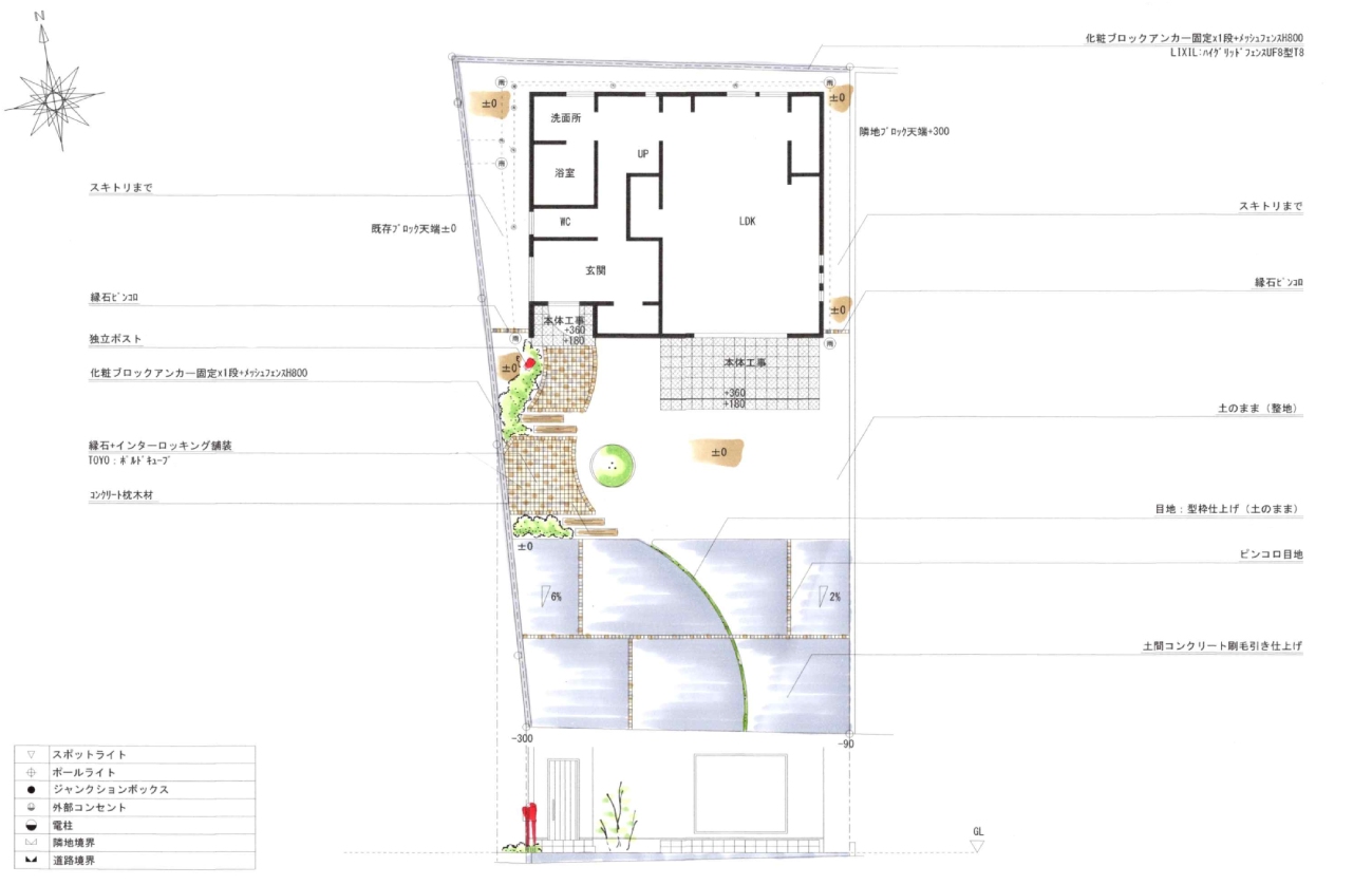
ゆったり車3台停められる駐車場は、目地にアクセントスリットを設置。シンプルに縦横柄も良いですが、アプローチへと続く曲線をそのまま駐車場へ延長し描くことでコンクリートの冷たさ・固さを軽減し全体の統一感と柔らかさを演出しています。

天然石の魅力の一つである多彩な色合いと本物の石により近づけた形状で、気品漂う空間を演出できます。
舗装:ポルドキューブ/ガンデブリック ポスト:YKKポスティモ


深い味わいの枕木調コンクリートペイブ。腐る・臭う・ささくれるというお悩みも無縁です。
いつまでも味わい深く、可愛らしい足元を演出してくれるアイテムを選びました。
NEW施工後のお客様の声


