工事金額615万円(税抜)
建物のデザインに調和するような配色と形状を考慮した穏やかなデザインにしています。仕様部材や植栽計画にもこだわっています。


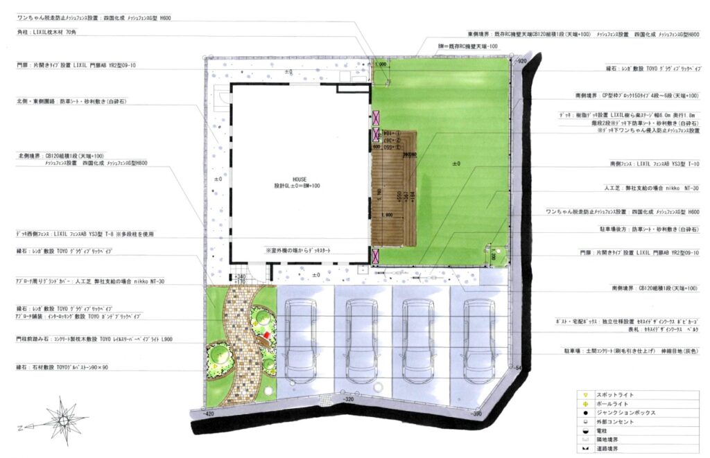
駐車・駐輪スペースは広々とコンクリート舗装にし、来客の際にもゆったりと駐車出来るようにしています。
アプローチは曲線を描き、柔らかな印象を与えるデザインにしています。
南のメインガーデンには人工芝と人工木のデッキを取り入れ、お施主様とワンちゃん達が楽しめるドックランの空間が広がります。

玄関ポーチに続くアプローチはコンクリート製のインターロッキングを使用し鮮やかな舗装面にしています。
ポスト・宅配ボックスは人気のボビカーゴを使用しています。ボルドーの深い色合いが建物やアプローチにアクセント効果をもたらしてくれています。

愛車や来客時の車をゆったり停められるように広々とコンクリート舗装にしています。

高低差がある敷地にはCP型枠ブロックを使用し、お庭の土留めを作成しています。土留めを作成することでお庭の法面が解消され、お庭面積を道路境界付近まで使用することが出来ます。
ブラウンのアルミ製フェンスを設置し、目隠し効果を持たせるとともに、エクステリア全体に統一感のあるデザインにまとめています。


お庭の出入り口付近には門扉を設置しプライベート空間と区切っています。
また、扉を開けた際の万が一のワンちゃんの脱走防止対策として高さ60cmのフェンスを設け、安心して使っていただけるようにしています。


デッキの側面にはゆったりと階段を設け、芝生へのアクセスをより安全に出来るようにしています。

掃き出し窓からお庭に続くデッキはご家族で遊べる広々空間に。樹脂製のデッキは経年変化によるささくれ等の心配もありません。風合いも美しくお庭に優しく調和します。

