工事金額254万円(税抜)


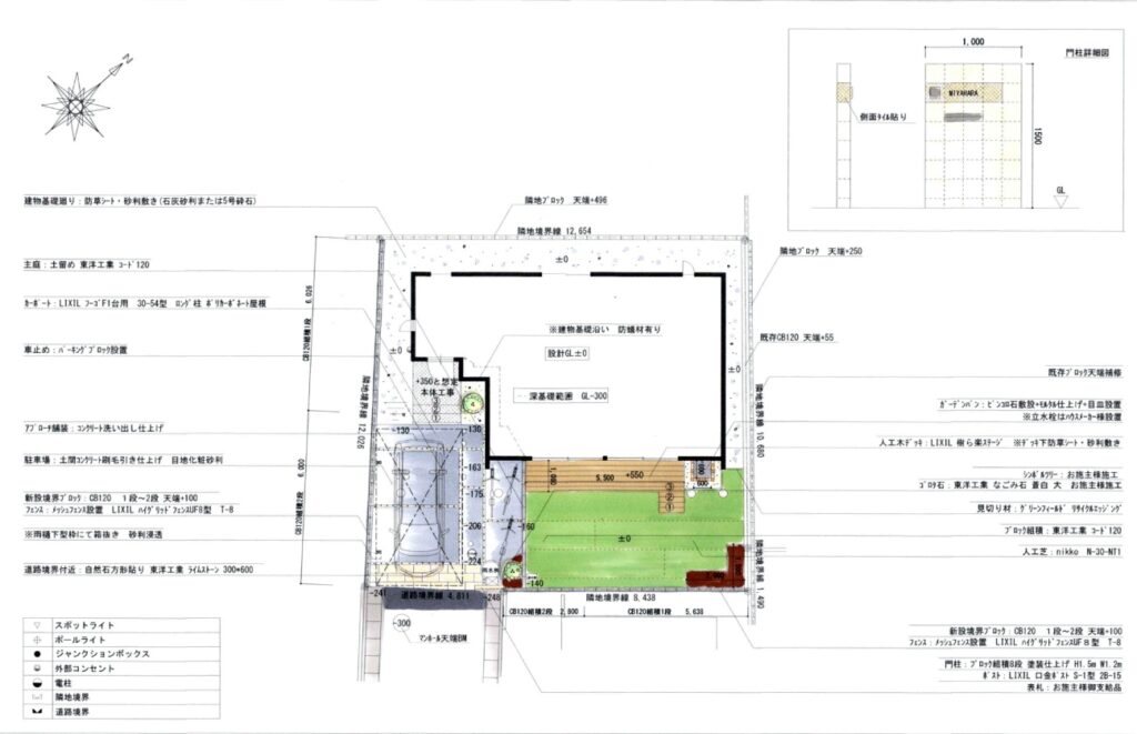
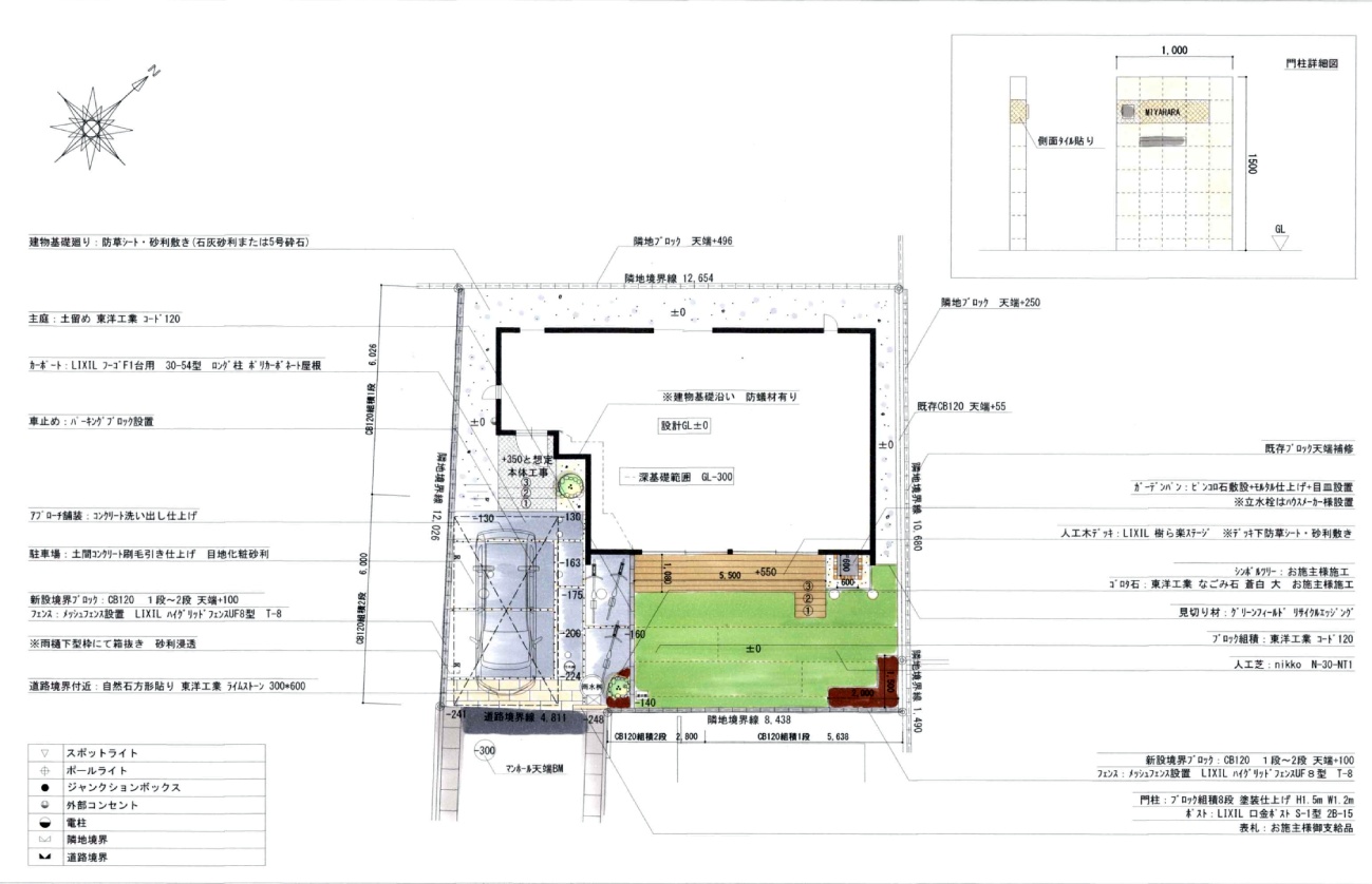
敷地に面した道路がそこまで広くは無い為、ファサードから庭にかけて大きな構造物は作らず、開放的で行き来しやすい動線の確保をしています。

駐車場はゆったり車を1台停められるように土間コンクリ―ト舗装にしています。
アクセントの砂利目地にはイエロー系の砂利を採用し、無機質になりすぎず柔らかな印象を与えてくれます。

建物の外壁面に合わせた塗料(アイカ工業/ジョリパット エイシェント仕上げ)を採用し構造物全体に統一感を持たせています。
一部に使用したオンリーワン/MOSAIC アルビノクォーツはランダムな石目の模様と凹凸が、フラットな壁面にほどよいアクセント効果をもたらしてくれます。埋込型ポストを設置することで、安全に敷地内から郵便物を取る事が出来ます。

カーポートは雨だけでなく、強い日差しからも大事な愛車を守ってくれます。
建物のサッシと同じブラックのカーポートにすることで、穏やかなデザインの中にもほどよく、カッコいい印象を与えてくれます。
LIXIL/フーゴF は数種類の屋根材から選ぶことが出来、中でもクリアマット色は人気です。採光は取り入れつつ、ほどよく日差しを遮るカラーなので軽やかな印象に仕上がります。

人工芝を一面に敷き、お子様が裸足でも歩ける広々としたお庭空間になっています。人工芝の下には防草シートも入れることで、防草対策も期待出来ます。



掃き出し窓の前にはLIXIL/樹ら楽ステージを採用し、お部屋の中からお庭への行き来をしやすいように階段を設けました。
デッキの下にはコンクリートを打ち、防草対策、お掃除対策、ちょっとした収納スペースとしての利用が期待出来ます。

ピンコロ石とモルタルで作成した水栓パン

