工事金額124万円(税抜)


ガーデニングを楽しむお施主様がこだわった曲線の階段。曲線が与えてくれる柔らかな印象と生き生きとした植物のグリーンは相性ぴったりです。

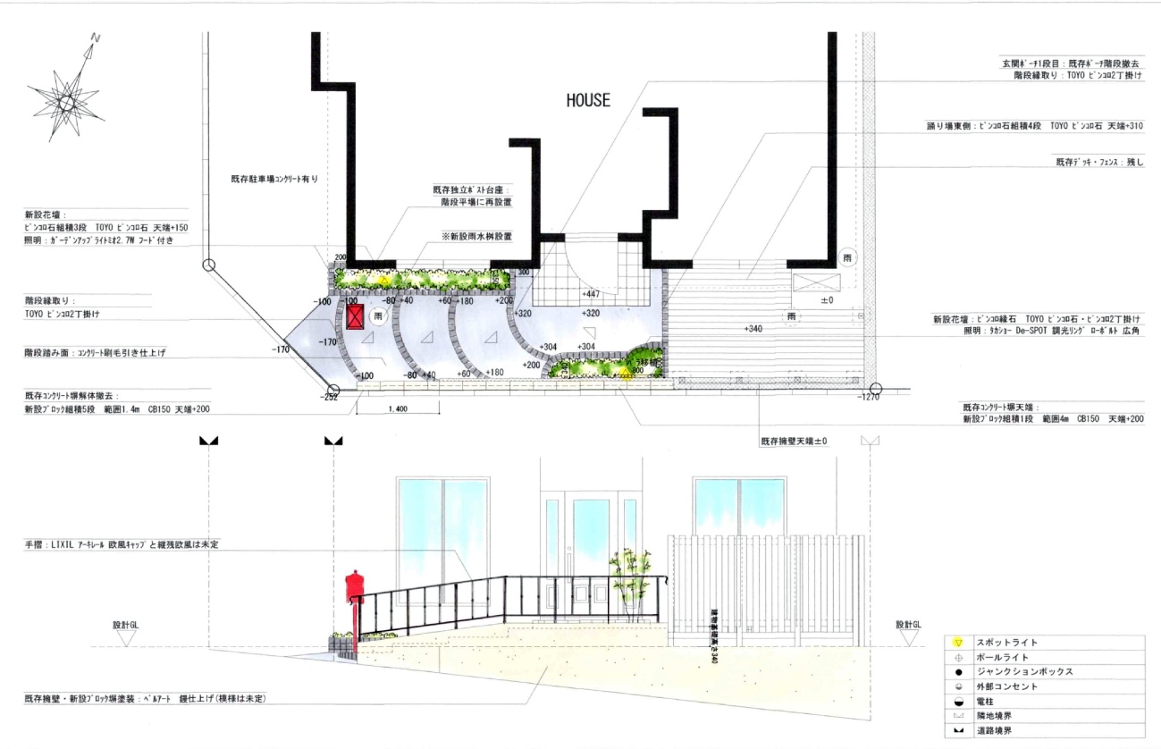
道路からの高低差があり、玄関までのアプローチがやや不安定だった為、安全にゆったりとした舗装面を作る必要がありました。道路境界は転落防草対策と歩行補助対策としての手摺の設置が必要でした。

当初の外構よりも多く階段を設け、各段の段差を緩やかにしました。清潔感のある壁面とフェンスを設置し高低差の不安を解消しました。

芝生で覆われていた地面は不陸があり足元が安定しない事も心配されました。土のスペースも広かった為、植栽が大きく茂り、お手入れも難しい印象を受けます。


舗装面のコンクリート表面は刷毛引きにし、雨の日や水を撒いた後のスリップ防止効果を持たせています。曲線と花壇のピンコロ石はブラックの色を採用し、落ち着きと重厚感のあるデザインにまとまっています。コンクリート素材だけではなく天然石を取り入れた花壇はアプローチに華やかな印象を与えてくれます。

既存の玄関ポーチは一部破損が見られた為、破損箇所の修繕が必要でした。

傷んでいない玄関ポーチは残しつつ、破損している階段部分は新たにコンクリート舗装を施しています。

築年数が経っている土留めの擁壁は全体的にくすんだ色味になってしまっていたので、洗浄・塗装を検討しました。

ホワイトの壁面はアイカ工業/ジョリパット エンシェントブリックを採用し、ファサード部分に明るい印象を与えてくれます。また、LIXIL/アーキレール 縦桟欧風Dを採用し、シックで華やかなヨーロッパ風のデザインにまとめています。ホワイトの壁面にブラックのアルミ鋳物はとても相性が良くヨーロッパ風のデザインがお好きな方にはお勧めの組み合わせです。

建物に付属しているドアや照明が新設の手摺や塗り替え後の壁と調和し建物の美しさが一層引き立ちます。

