工事金額110万円(税抜)
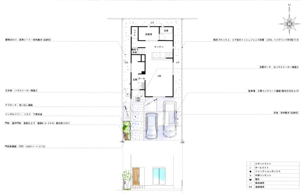
南側に駐車場とアプローチが配置されるこちらの敷地は、お施主様の車や来客用の車がゆったりと駐車出来るように広々と舗装面を作成しました。
舗装部分には砂利目地を設け、洗い出しとコンクリートに分けることで駐車場とアプローチの雰囲気を色のトーンと質感で分けることが可能です。
洗い出し舗装はコンクリート舗装を作る過程で、コンクリートが固まりきる前に洗い出し専用の薬品を散布し、表層を水で洗い流すことでコンクリート中の砂利を表面に浮きだたせる技法のことを言います。
コンクリート舗装の仕上がりよりも色味が落ち着いた印象になり、近年では和風のデザインだけではなく、シンプルなデザインの住宅や、ナチュラルな印象の住宅にも採用されることがあります。
門柱部分には四国化成さんのパレットHGを採用し、モルタルのような風合いの塗装を施しました。
門柱のすぐ横には2mのオリーブの木を植栽することで、シンプルで落ち着きある中にも穏やかな印象を与えることが出来ます。

アプローチ 
洗い出し舗装
New施工後のお客様の声








