工事金額153万円(税抜)

ホワイトを基調とした建物に木目調のアクセントを取り入れたセミクローズ外構
建物が全体的にホワイトでまとめられ、軒天や玄関ドアに木目のデザインが取り入れられていました。外構プランにおいても木目調の素材を取り入れることで、建物と外構に統一感を持たせることが出来ました。


2世帯住宅に合わせた外構デザイン
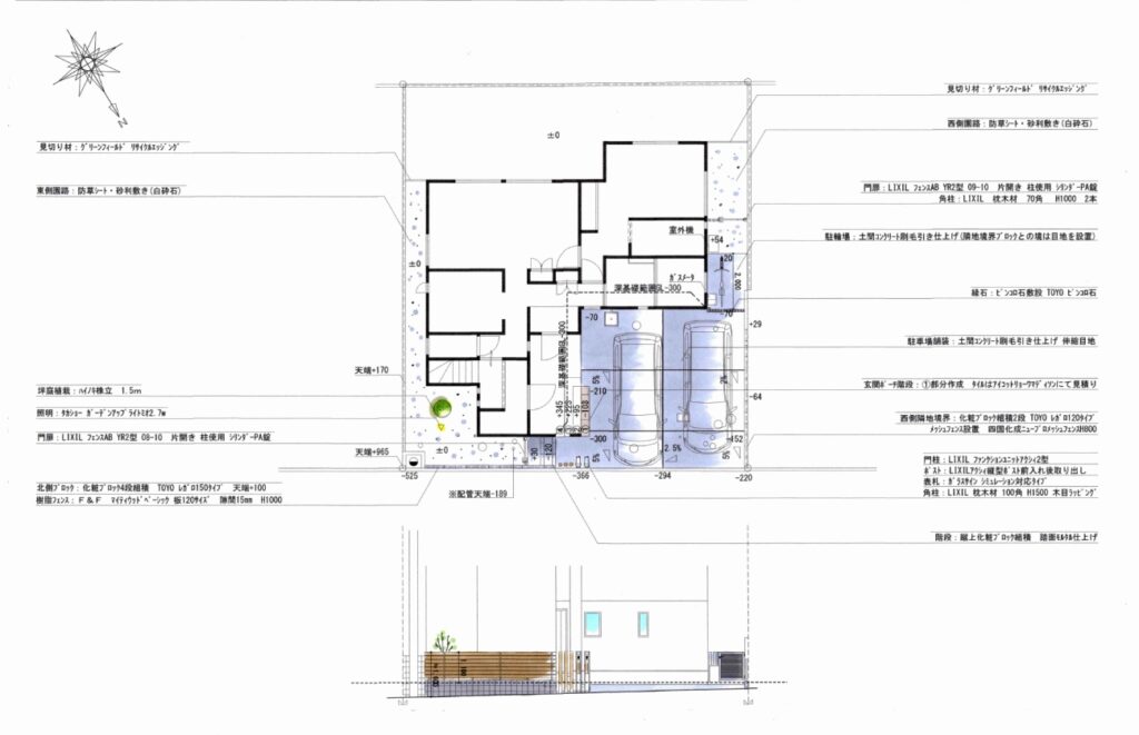
駐車スペースは2台の車がゆったりと駐車できるよう、土間コンクリート舗装となっています。
門柱(ポスト・表札)は駐車スペースや人の動線を優先とした場所に設置しました。
玄関前や駐車スペースはオープンですが、お庭(プライベート空間)への動線はきちんと仕切り、安心して利用できるようにプランしました。

2世帯住宅用の門柱をご希望でしたので、LIXILアクシィ2型を2セット設置しました。
2世帯住宅用に商品化されている機能門柱は高価なものが多いのですが、コストパフォーマンスが高いアクシィ2型と角柱を組み合せることで、お洒落で統一感のある門まわりをご提案することが出来ました。
機能門柱を並べただけでもかっこよく仕上がりますが、角柱を数本取り入れるだけで一気に重厚感が生まれます。

道路沿いの目隠しフェンスは、F&Fのマイティウッドベーシックを採用しています。こちらの商品は樹脂製で出来ていて、木目の表情をうまく再現されています。
経年変化による劣化や色褪せが無いので、メンテナンスに自信のないお客様には大変お勧めな商品です。

ファサード(建物の正面)に面した部分に1本の樹木があるだけで、建物全体の雰囲気が穏やかになります。
道路に面した付近には樹木+ライトアップを取り入れることで、防犯の役目も発揮することが出来ます。

園路を仕切る門扉はLIXIL門扉ABYR2型を採用しました。建物の窓枠や水切りに使用されているシルバー色に合わせることで、主張しすぎることなくシンプルに空間を仕切ってくれます。
道路から建物の設計GLまでに高低差があるので、安全に行き来できるように階段を作成しました。

