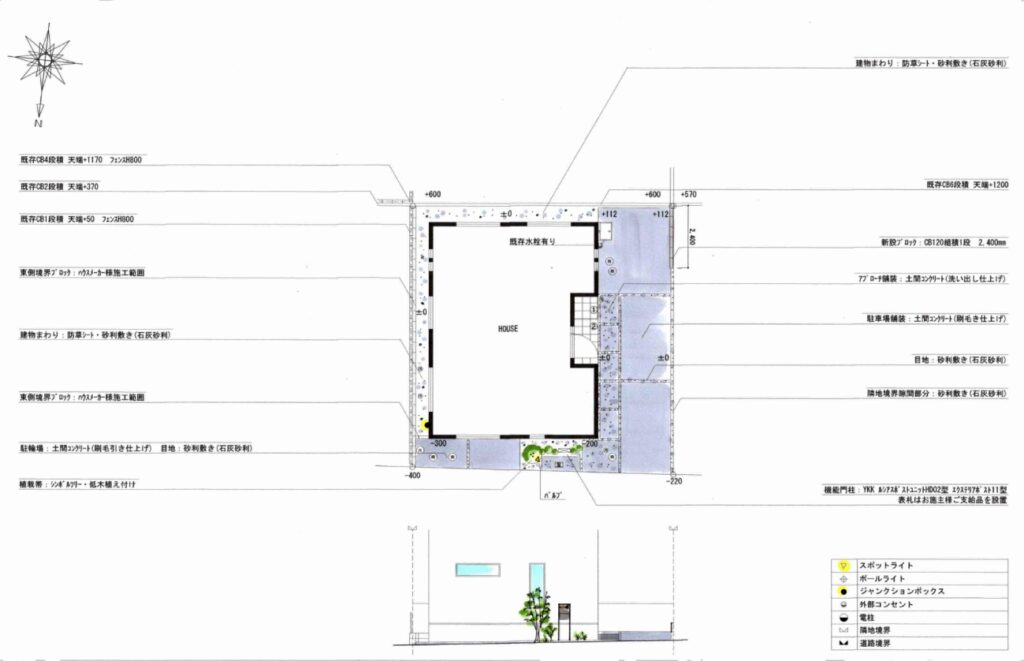
工事金額96万円(税抜)


メインのコンクリート駐車場は2台分確保し、人が歩く箇所には洗い出し仕上げを施しています。門まわりには程よく植栽を取り入れることで、全体的に無機質にならないデザインです。

建物のサッシ素材に合わせたブラックの機能門柱は構造物全体に統一感をもたらしてくれます。ダーク系の色味だけだと重くなりがちな空間もシンボルツリーと下草を添えることで一気にお洒落な印象にまとまります。

道路からやや高低差がある敷地では緩やかな傾斜を設けて玄関までのアクセスを安全に行えるようにします。

道路に面した狭小箇所はコンクリート舗装にすることで自転車の出しいれをスムーズに

洗い出し仕上げは全面的に落ち着いた色味になるので、コンクリート舗装との色の差や、砂利との境のエッジが強調されアクセント効果をもたらしてくれます。


