工事金額136万円(税抜)



優しい壁色にぬくもりを感じさせる玄関ドア、ピリッとしめるサッシの黒色。この要素をエクステリアにしっかりと反映・取り入れることを心がけ、機能面でもしっかり活躍してくれるオープン外構を演出しました。


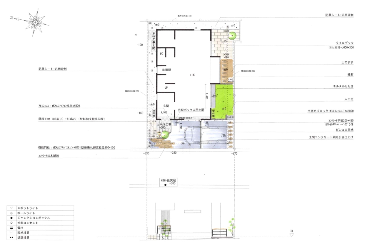
玄関ドア・フェンス・機能門柱の色を統一。木目があたたかいスッキリとした玄関周りを演出。


600×300サイズの大判タイルで重厚感を演出し、お部屋からも見ることが出来る植栽をデッキ内に設置することで、日々のやすらぎをより感じることが出来ます。


ちょっとした作業場としての利用や防草効果のある人工芝とコンクリート製枕木による歩み石が隠れ家(タイルテラス)へ導いてくれます。


アクセントアプローチ舗装には車両乗り入れ可能なコンクリート製枕木材を採用。腐る・臭う・ささくれる心配もなくご利用いただけます。

