工事金額110万円(税抜)



建物の色味が全体的にホワイトでまとまられているこちらのお家には、あえてブラックの機能門柱やカーポートを取り入れることでメリハリのあるデザインになりました。
近年では、玄関ドアや外壁の組み合わせにブラックを取り入れるデザインも注目されています。
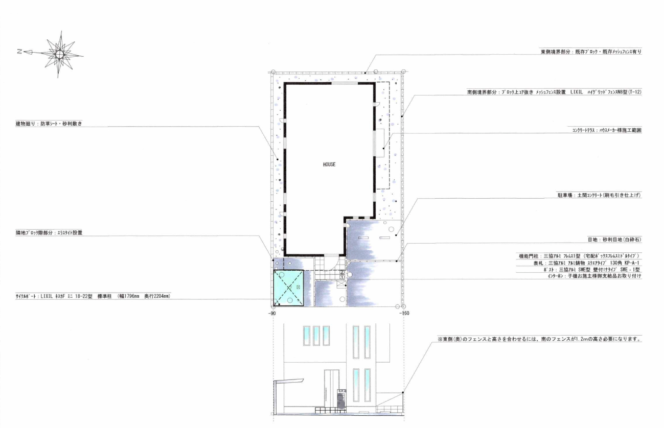
車の駐車付近には構造物を作らず、ゆったりと駐車が出来るようにコンクリート舗装としました。
砂利目地を使用し、コンクリート面にアクセントを与えています。
サイクルポートを設置することで、ご家族の自転車を雨ざらしにならずに駐輪することが出来ます。
玄関前にはデザイン性の高い宅配ボックス付きの機能門柱を設置することで、スペースを確保しつつお洒落な印象を与えてくれます。


三協アルミのフレムス1型を採用しました。ポストや宅配ボックスと周りのフレームのバランスが美しい商品です。重々しい一枚壁のようにならないよう、「抜け感」を取り入れたデザインはかっこよさと軽やかさを兼ね備えています。

LIXILのネスカFミニを採用しています。施工性も良く比較的お手頃な価格で設置をすることが出来る人気商品です。ポリカーボネート屋根はクリアマットを使用することで、上階からの目線を遮るとともに、光を取り入れることが出来る仕様になっています。

人気のステンレス製のガーデンパンはお庭の一部にあるだけでとてもかっこいい印象を与えてくれます。
NEW 施工後のお客様の声


