工事金額278万円(税抜)



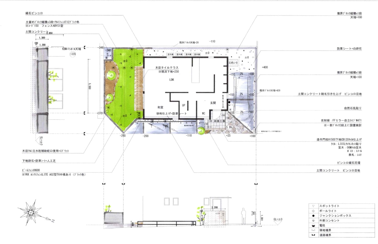
玄関正面はお子様の急な飛び出し防止や、外出時にドアを開けてすぐに感じる正面の何もないプレッシャーを軽減する為に、大型の門柱を設置しました。
全体的に建物の金物カラーであるブラックを主に色を統一させ、建物の重厚感に負けないように門柱のタイルやアプローチの自然石でバランスを取っています。


埋込ポストはTOYO工業のエメールで前入れ後ろ出し仕様となっております。
表札はTOYO工業のレコテでさりげないサイズに造られており、ポストと同じくマットなブラック色が飽きの来ないモダンさを感じられます。


お住まいに馴染む素朴な風合いの木目タイル:オンリーワン ウッドラスティック


全面に広がる人工芝はメンテナンスフリーで、一年を通して芝の上で遊ぶことが出来ます。
ピンコロ石を使ってちょっとした花壇を設けることで、植物を楽しむこともできます。


圧迫感を感じさせずに程よく目隠し効果を得られる、LIXILフェンスABYS1型を採用しております。


左:地面に埋まるタイプの受け皿はお庭のスペースをより広く感じることができ、お客様の方でお好みの化粧砂利を入れることが出来ます。
右:超広角ミラーを設置することで前面道路の急な飛び出しによる事故を未然に防ぐことが出来ます。

