工事金額162万円(税抜)



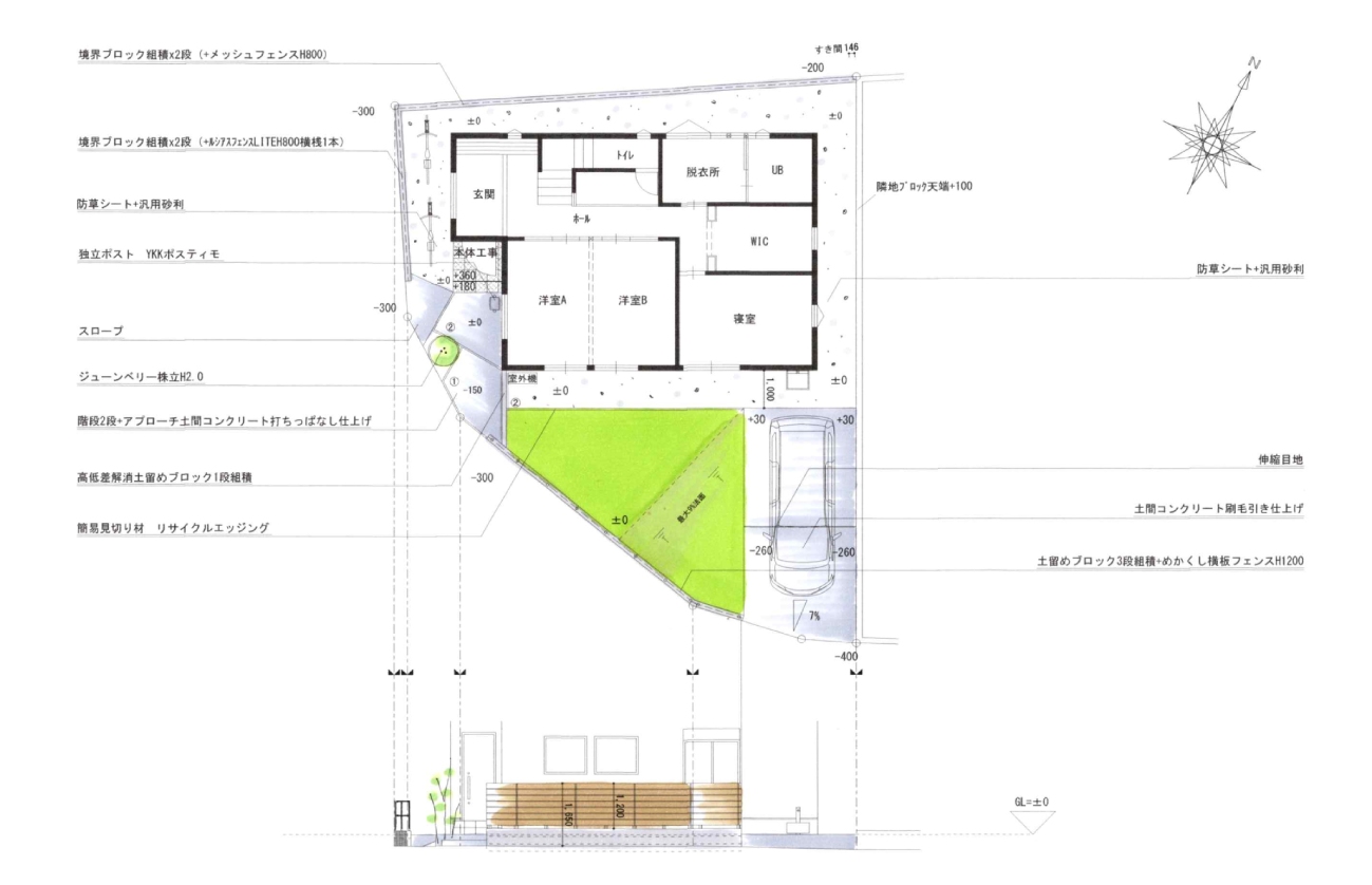
駐輪所用のスロープと動きのある階段に、シンボルツリーを取り入れたアプローチ周りを組み立てました。斜めの角地部分にありがちなデットスペース(無駄になる部分)を有効に使い、柔らかくあたたかい印象を与えてくれる植栽スペースを異形に収めています。


静かで飽きの来ない打ちっぱなし階段は、春を待ちわびる落葉樹(ジューンベリー)との相性がとても良いです。


フェンス:タカショーモクプラボードフェンス


ポスト:YKKポスティモ フェンス:YKKルシアスフェンスLITE

ゆっくりと成長し愛情をこめて育てていくのも、お庭の楽しみの一つです。
NEW施工後のお客様の声


