工事金額331万円(税抜)解体工事別途


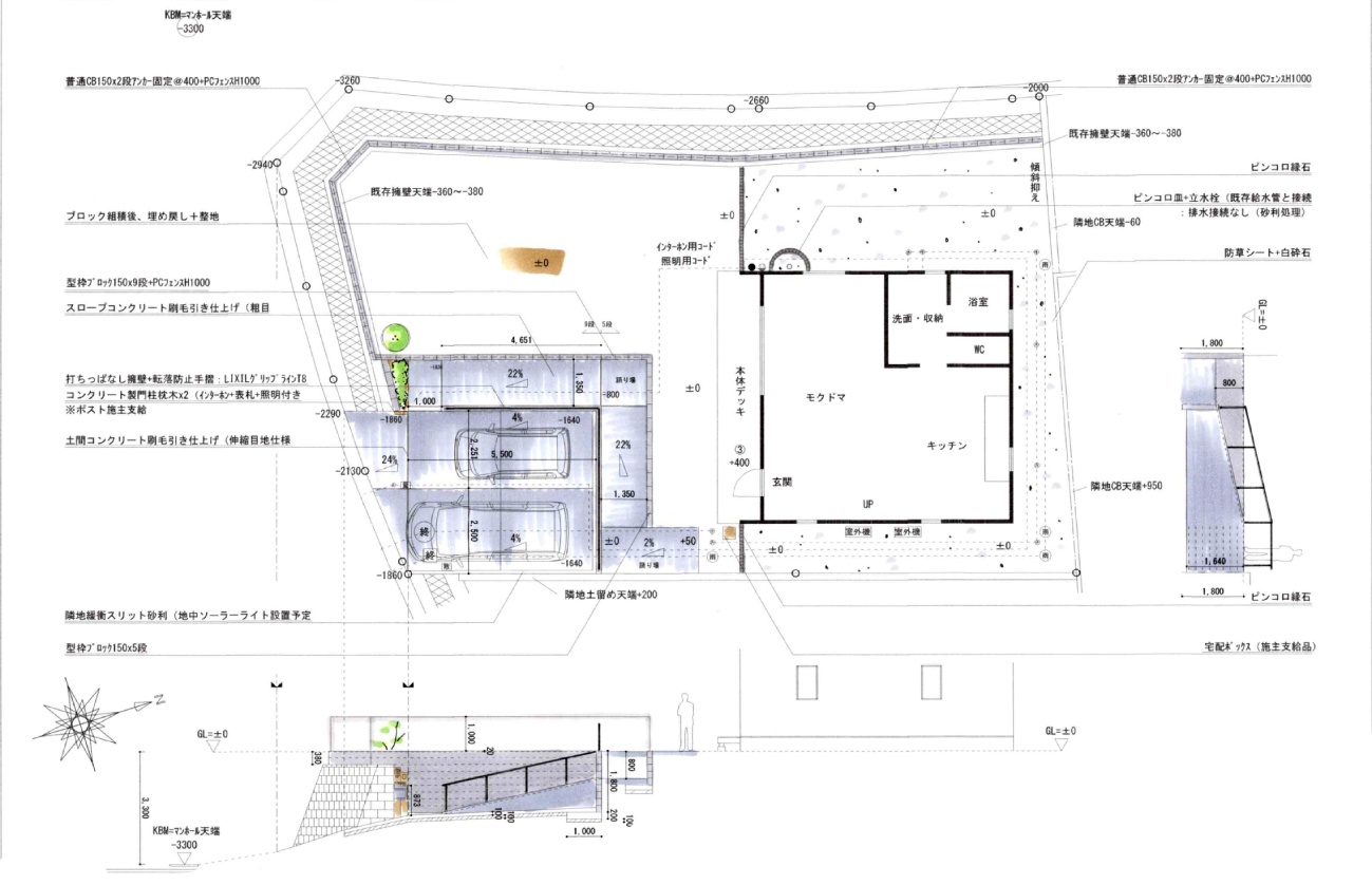
高低差約2mの敷地をどのように使いやすく組み立てるかを重点してデザインしました。
緩やかな2段階のスロープは重い荷物を運ぶ為、台車による運搬を可能にしています。
配色は木のぬくもりがあふれるおうちに合った、茶黒を選びコンクリート色ともにシンプルで飽きの来ないデザインになっています。

門柱はコンクリート製の擬木枕木材によりシロアリや腐敗の心配もなく、木のぬくもりを感じることが出来ます。
門柱:TOYOレイルスリーパー 手すり:LIXILグリップライン


隠れ家的なBESSの家にぴったりなスチールフェンス
フェンス:朝日スチールPCフェンス



元の敷地内構造物は車1台分のスペースしかありませんでしたが、解体としっかりとした土留めブロックの作成によりお車2台分のスペース確保が可能となりました。

