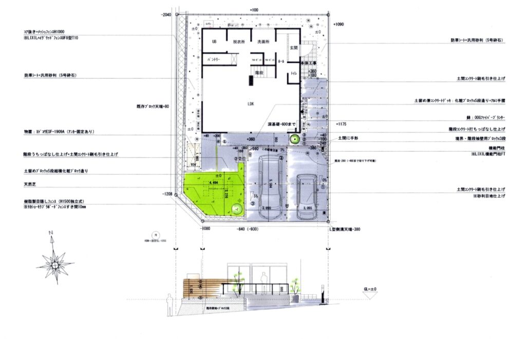
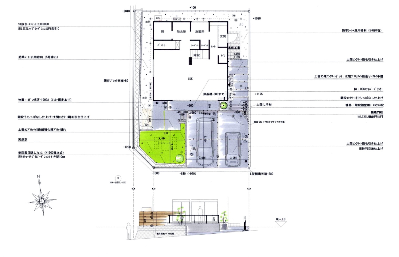
工事金額314万円(税抜)


前面道路の勾配はかなり強め。建物は深基礎計画なし。高低差もあることで課題は多いですが、お客様の要望を元に丁寧に組み立てることで、その課題は逆に動きのあるエクステリア空間が生まれます。

高低差があるため、土留めブロックが必須。タイルデッキかウッドデッキかが一般の選択肢ですが化粧ブロックを土留めブロックとして利用し、職人さんの丁寧なブロック加工によりコンクリートデッキが生まれました。転落防止にシンプルなアルミ手すりを設置する際は建物の色と合わせて飽きの来ないデザインとなりました。


撮影当時は冬なので芝は茶色で落葉樹は葉を落としていますが、春を待ちわびる静けさも日本特有の季節感があってとても素敵です。


アプローチの存在は、宅配ボックスを備えた機能門柱と1点の緑を添えることで自然と奥へ誘導されます。

