工事金額 92万円(税抜)
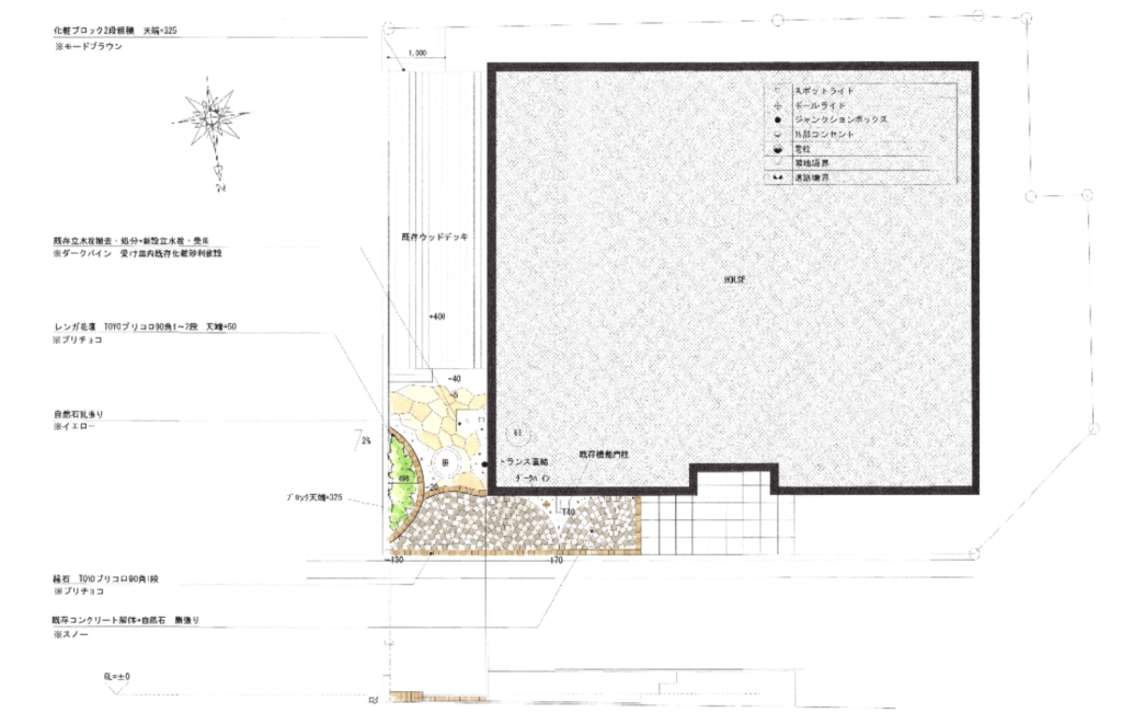
道路からの段差を無くし、横に広がる欧風石畳(扇形)を演出することで奥行き感と動きを感じることができます。
いつもご利用されるお子様や、同伴するご両親の方にとって段差は躓きやすく危険な場所でもあります。少し勾配を設け、既存のGLに結ぶことで雨水の流水を促進させ水たまりを防止しています。
立水栓はカッコいい蛇口にカスタマイズすることで、オンリーワンでありお子様も喜んでいただけます。
色合いは建物の欧風な明るさにあわせて自然石の配色と、ウッドデッキにあわせてアルミカラー(立水栓とポールライト)は木目ブラウン色にしました。
自然石の動きのある張り方とピンコロレンガ花壇の柔らかい曲線、間に入るイエローカラーの自然石の砂利を添えることで、既存の枡を少しでもカモフラージュできるよう心掛けました。









