工事金額86万円(税抜)
シンプルな深みのある紺色の塗り壁に木目のアクセントの入った建物を「邪魔せず、勝たず、引き立てる」ような組み立て方を心がけました。
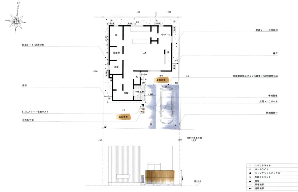
正面掃き出し窓前には外部からの視線を抑える「F&Fマイティウッド・タテイタスタイル」を設置し、静かな建物の雰囲気に調和させています。また、目隠しフェンスと建物の間は2m程あるので、後に芝を張ったりテラスを作る事で小さなお子様の遊び場や大人もちょっとしたブレイクタイムにも活用できる空間となっています。
機能面・使いやすさを元に、落ち着きのある素材・配置を取り入れることでお客様のご要望に近づくことができました。
New施工後のお客様の声








