工事金額115万円(税抜)



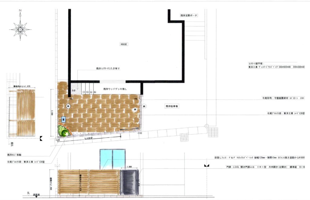
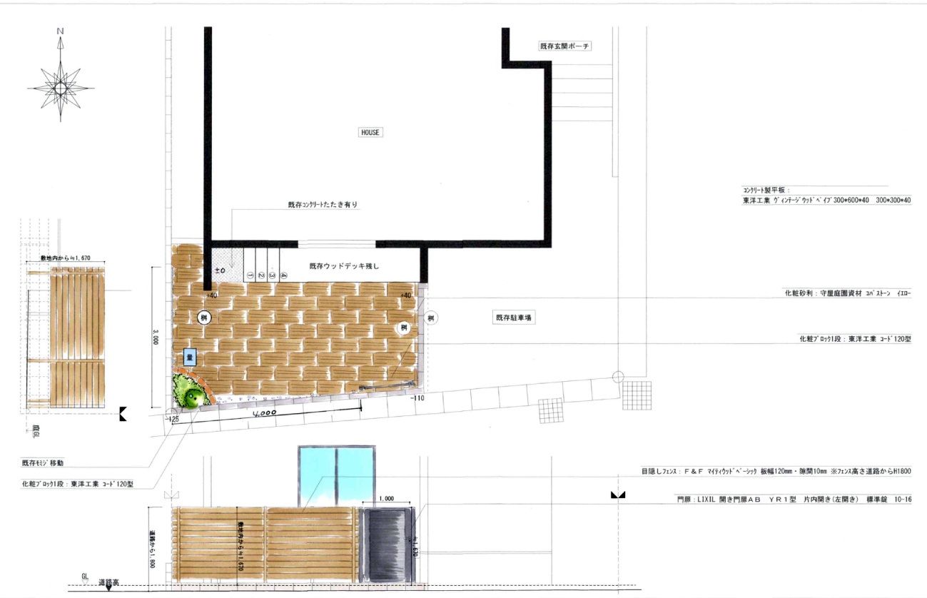
当初お庭部分には天然芝が敷かれており、道路から建物方向に向かってやや強めの勾配が付いていました。

お庭部分と道路の境には化粧ブロックで仕切り、お庭内を緩やかな水勾配を取った舗装面にしています。天然芝や雑草のメンテナンスも軽減出来ます。


前)既存のハードウッドのデッキはまだまだ活用出来るハードウッド素材でしたのでハードウッド素材と組み合わせても違和感のない舗装材の選定が必要となりました。
後)ハードウッドの経年変化になるべく馴染む舗装材を選定。TOYOヴィンテージウッドペイブ(アンバー)を採用し、お庭全体に一体感を持たせています。駐輪スペースとしての活用も考慮し、駐輪しやすいフラットな舗装面になりました。


前)既存のフェンスは道路からの目隠し効果がやや低かった為、フェンスの隙間・高さ・素材の見直しを行いました。
後)F&Fマイティウッドベーシックを採用し、全体的に落ち着きのあるブラウン調のエクステリアにまとめています。お子様が道路へ飛び出してしまわないよう、LIXIL門扉ABを設置し安全に行き来が出来るように配慮しています。




