新築をお考えの方または現在建築中の方、建物の知識は頑張ってそれなりに覚えたが、いよいよ次はお住まいになられる上で必要である外構・庭(エクステリア・ガーデン)の用語が新たに加わってきます。
ハウスメーカーや工務店では外構・庭は専門分野ではないので、知識やデザインが乏しく最低予算でなんとも味気の無いプランが上がってくる(建築営業さんはその分だけ建物の方を素敵にしたいですからね。)ことや、ハウスメーカーから紹介された専属の外構業者の見積りが内容の割に値段が高額(シンプルに紹介料の分だけ高額です。)ということを皆様からよく耳にします。
あらかじめ知識を押さえておくことで、自分にとって必要なもの・お好みのものは何なのか、また予算もあわせて事前に計画をしていくべきです。

外構・庭における用語を一つ一つじっくりとご説明したいところですが、このページでは図面イラストを元に皆様に簡潔にわかりやすくポイントを押さえながらご紹介していく事で、多大な知識容量を最小限に圧縮してご理解いただき、打ち合わせのお時間をスムーズに楽しく過ごしていただけるように作りました。

上のイラストをもとに、ご説明いたします。(目次の項目をクリックするとページ内で移動できます)
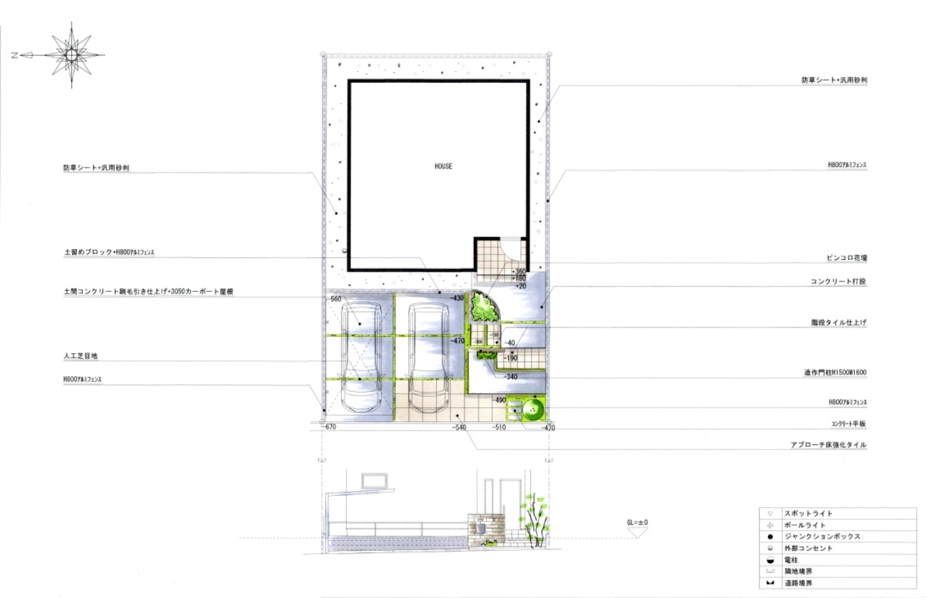
カーポート屋根 (カーポート 車の屋根等)
停車部分に屋根を付けることで強い風や雨、雪、紫外線などから愛車を優しく守る独立した構造物です。
車は今や生活に欠かせないアイテム。だからこそ、スペースを確保していつまでも大切にしたいものです。豊富なデザインやサイズ(1台~3台)、カラーバリエーションの中から駐車スペースの条件や、外構のスタイルに合わせて自由に選ぶことができます。



土留めブロック (土留め 型枠ブロック CP等)
高低差がある土地や盛り土したときに使用する、雨水や土の圧力による土壌の崩壊を防ぐ専用のブロックで、多くの鉄筋やブロックの厚み、地中の基礎を大きく作ることで通常の(高低差の無い)ブロックよりも強固な構造をもっています。

目地 (スリット ~目地 ~には使用材料が入る)
コンクリートは瞬間的な衝撃には強い効果を発揮できますが、温度の変化による伸縮で生じる力には弱いです。そのため、一定の面積を超える前にあらかじめコンクリートの面積を割り付けることで、伸縮によるクラック(ひび割れ)を防止しています。その割り付けとなる部分を目地といい、ピンコロ石やレンガ、砂利や植物などデザインと予算に合った素材を自由にお選びいただけます。






土間コンクリート (土間 コンクリート等)
主に車を停める場所や、アプローチなどしっかりと安定した足場が確保できる舗装の事で、上記のように(③目地項目)コンクリートは瞬間的な衝撃には強いが伸縮によるじっくりとした力には弱いので、必ず鉄筋(ワイヤーメッシュ)を施します。網状の鉄筋をコンクリート内部に入れることで温度変化による伸縮を軽減し、瞬間的な衝撃にもさらに耐久することができます。
また、表面の仕上げは表面がつるっとした金鏝仕上げ、ザラっとした刷毛引き仕上げ、骨材をむき出しにする洗い出し仕上げがあり、デザインと機能性を考慮して自由にお選びいただけます。


門柱 (機能門柱 造作門柱 オリジナル門柱)
お住まいになられる上で必要性の最も高い、表札(名前)・ポスト・インターホンを取り入れたいわゆる「顔」となる構造物です。毎日ご利用するものだからこそ、デザインや色、サイズも豊富で各メーカーのスタイルに合った最新モデルもご利用できますし、タイルや石、ライト等を自由に使った世界にたった一つのオリジナル門柱を造作することができます。最近では通販を頻繁に利用される方にとって便利な宅配BOXも取り入れることができます。


アプローチ (ファサード…建物の正面に造られる物やスペースの事)
門から玄関にかけてしつらえた道の総称で(門がない場合は道路から玄関まで)、高低差がある場合には階段や手すりを設置したり、敷地が狭く感じることの無い工夫や飽きの来ないデザインが必要です。毎日気持ちよく歩くことができる場所にはお気に入りの石やタイル、植栽・ライトを取り入れて快適で充実したエクステリア空間を体感できるスペースになります。



シンボルツリー (植木 メインツリー)
無機質で視覚的にも景観的にも暑いコンクリートや構造物の中にやすらぎと冬には暖かみ、生命力を与えてくれる緑(植栽)の中でひと際サイズが大きくシンボルとなる樹木の事です。特集常緑樹と落葉樹の2種で分けられ、さりげない葉っぱによる目隠しや紅葉・花などの季節が味わえたりと、特性は多種多様にありますので、お好みの樹木を自由にお選びいただけます。長年寄り添って生きていく物ですので記念樹として植樹するお客様もいらっしゃいます。


境界ブロック・フェンス (外周ブロック・フェンス)
自分の敷地とお隣の敷地を分ける(境界を明確に示す)為のブロックで、ブロック上にフェンスを設けることで外部からの侵入を大幅に軽減する事ができます。通常、既存の境界杭や印をもとに作成いたします。普通のグレーのブロックのほかにも、化粧ブロックという材料(ブロックの側面に柄などの化粧がついたコンクリートブロック)を使用することもできます。関連目隠しフェンスについて


以上がポイントを押さえた最小限のご説明になります。
建物程膨大な情報量ではないと思います。ここまで大体ご理解いただければ全体の8割程です。
ただ、その8割とご自身に合った内容を詰めることで目的と予算がまとまり、これからの打ち合わせや計画を断然スムーズに進めることができます。もちろん最終目的は「建物にあわせた長年愛され続けるエクステリア」です。
また、当店の参考概算値段表も目を通していただけるとより予算計画のヒントになるかと思います。
ここまでお読みいただきましてありがとうございます。皆様の快適なライフスタイル計画のお役に立てられましたら大変幸いです。


