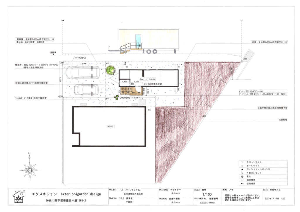
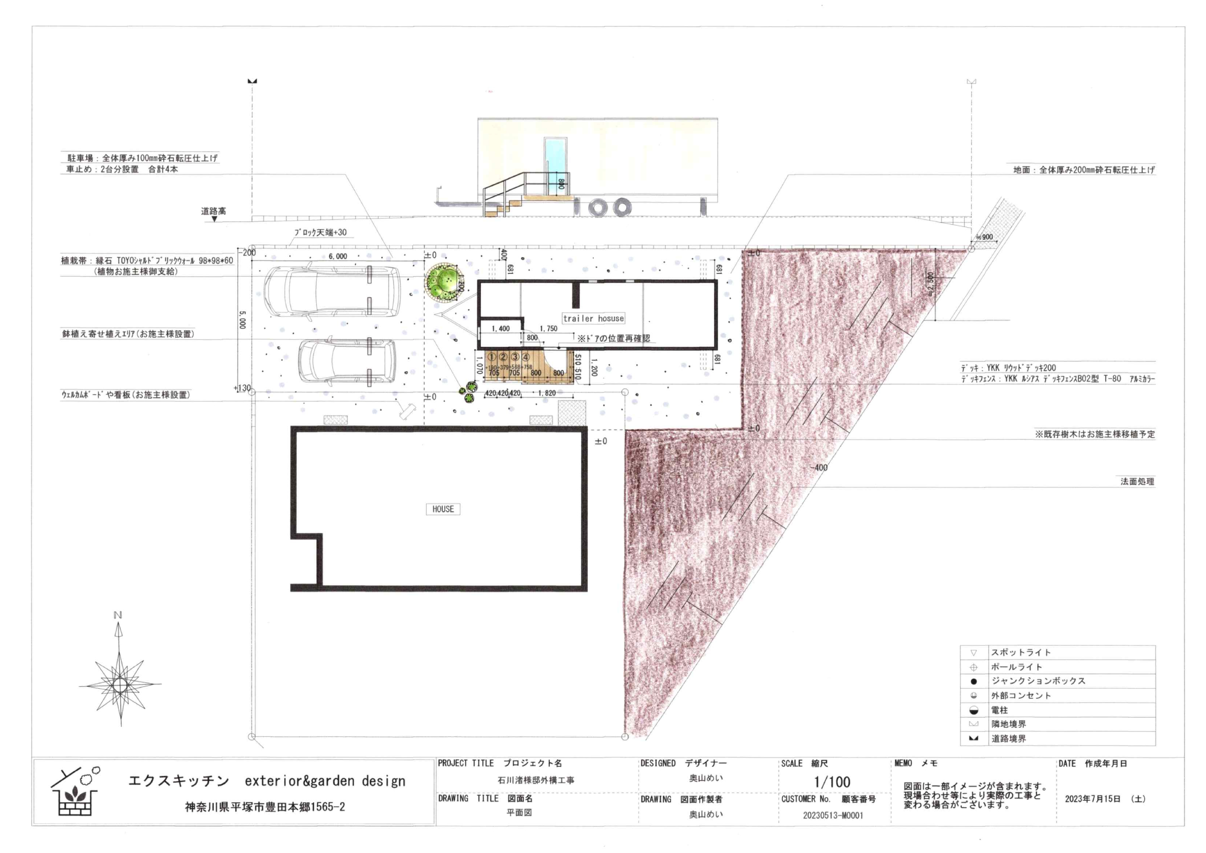
工事金額146万円(税抜)


トレーラハウスの店舗入り口までかなりの高低差がありますので階段にウッドデッキを使用しています。樹脂、アルミ製なので天然木と違い痛んだり朽ちることは無く安心してご利用いただけます。

入退店の際、誤って転倒や転落をすることが無いように手すりを設置。配色もオーナー様のお人柄の様に暖かみのある柔らかいイメージを持ち合わせています。

清潔感のある入り口はお客様に安心感を与え、賑やかな緑を背景に1点のポイントツリーがそっと暖かみを感じさせてくれます。

前面のシンボルツリーにジューンベリーを添え、1年を通して季節を味わうことができます。敷地が広いのでお車もゆったり停めることができます。

