

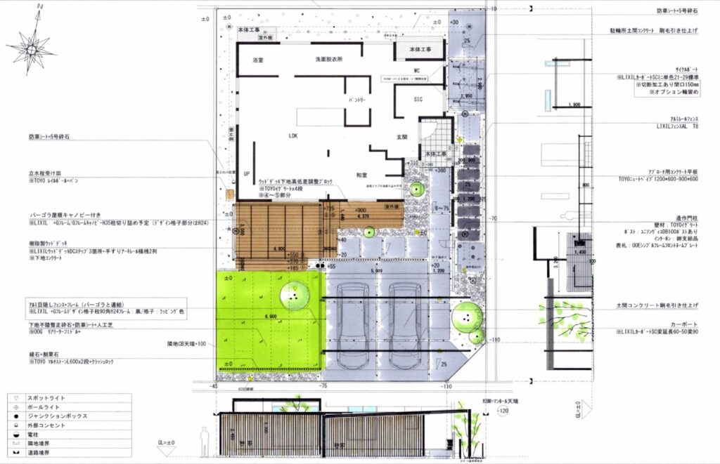
アプローチ・駐車場・庭の一体感を、材料の色とアルミのフレームを繋ぐ特別な配置で演出しています。特にアプローチは2つ存在し、門柱を挟んでご来客用(正面)と施主様用(裏側面)と分けることで必然的にプライベート感が産まれています。


ご来客用アプローチは正面として、門柱にポスト・表札・インターホンを配置。玄関まではニュートラルな空間を繋ぐ平板を並べ、時と共にあじわいをましていきます。


採用したカーポートの柱は梁の延長により移動が可能となります。延長することで得られるものは、①車の可動域に柱がない事でスムーズに駐車ができる事、②ダウンライトを設置して夜間のアプローチの演出として活躍できることです。こちら側が施主様用のアプローチ(裏側面)となります。


カーポートの柱が落ちるエリアには道路との干渉部分でもあるデッドスペースが産まれます。こちらには割栗石と植栽が配置され、自然石が生み出すやすらぎを感じられる、しっかりと意味もつスペースとなりました。


お庭のメインはウッドデッキとシェード付きパーゴラ屋根で、昼は必要な時にシェードで日差しを避け、夜は開放感のある静かな広い空間となり心ゆくまで満喫できます。


庭側正面からの目隠しとして、アルミのデザイン格子を採用しました。カーポート屋根の色と合わせることで一体感が産まれました。また、格子自体に奥行きがあるので斜めからの視線はほぼ遮ることが出来ます。


建物和室の地窓から外を覗くと、広がる岩々と緑を感じられる演出に。アプローチに対しても共通となりました。


